OGŁOSZENIA NIERUCHOMOŚCI
Sprzedaż - Kupno - Wynajem
domy
działki
garaże
magazyny
lokale użytkowe
mieszkania
budynki użytkowe
kamienice
pokoje
gospodarstwa rolne
domki
Rodzaj ogłoszenia:
- wszystkie ogłoszenia -
Sprzedaż
Kupno
Zamiana
Wynajem
Typ nieruchomości:
- wszystkie typy -
dom
działka
garaż
magazyn
lokal użytkowy
mieszkanie
budynek użytkowy
kamienica
pokój
gospodarstwo rolne
domek
Województwo:
- dowolne województwo -
dolnośląskie
kujawsko-pomorskie
lubelskie
lubuskie
łódzkie
małopolskie
mazowieckie
opolskie
podkarpackie
podlaskie
pomorskie
śląskie
świętokrzyskie
warmińsko-mazurskie
wielkopolskie
zachodniopomorskie
Cena (PLN):
od
do
Skorzystaj z poniższej mapy, aby szybko odnaleźć ogłoszenia nieruchomości w wybranym województwie.
provinces
Tanie noclegi i wczasy nad morzem.
Ceny już od 20 zł za osobę !
Zapraszamy nad polskie Morze Bałtyckie.
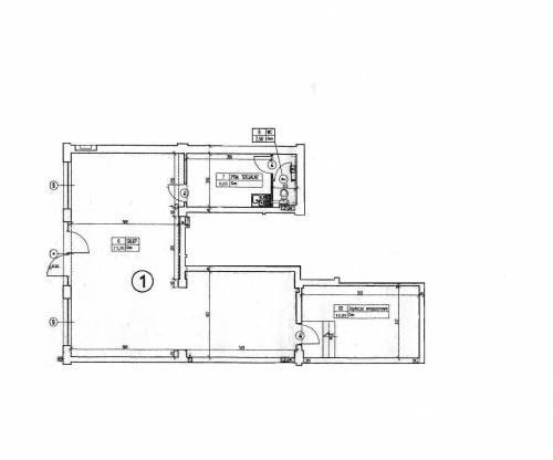
Lokal użytkowy do wynajęcia (101 m
2
) - Bydgoszcz.
powrót
Cena ›
5500 zł
Typ nieruchomości ›
lokal użytkowy
Powierzchnia ›
101 m
2
Województwo ›
kujawsko-pomorskie
Miejscowość ›
bydgoszcz
Opis nieruchomości
DO WYNAJĘCIA LOKAL HANDLOWO-USŁUGOWY ZLOKALIZOWANY NA PARTERZE NOWEGO BUDYNKU W ŚCISŁYM CENTRUM BYDGOSZCZY, W JEDNYM Z GŁÓWNYCH SZLAKÓW KOMUNIKACYJNYCH I PIESZYCH O POWIERZCHNI 101 mkw. DUŻE, CZYTELNE WITRYNY, POMIESZCZENIE SOCJALNE, CZĘŚĆ BIUROWO-MAGAZYNOWA. ULICA CHARAKTERYZUJE SIĘ DUŻĄ ILOŚCIĄ FIRM KOMPUTEROWYCH ORAZ INSTYTUCJI FINANSOWYCH. KONTAKT: MACIEJ 510-058-512,512-388-950
Zdjęcia obiektu
Kliknij na miniaturę, aby powiększyć wybrane zdjęcie
.
Opis działki
kanalizacja miejska
woda
prąd
gaz
Informacje dodatkowe
okna antywłamaniowe
centralne ogrzewanie
Lokalizacja na mapie
Poniżej znajduje się mapa z zaznaczonym miejscem, gdzie znajduje się oferowana nieruchomość.
Ładowanie mapy...
Dane kontaktowe
Poniżej znajdują się dane umożliwiające kontakt z osobą oferującą nieruchomość.
Telefon ›
512-388-950
Telefon kom. ›
510-058-512
Wyślij wiadomość ›
Kod ›
f88179
Przepisz kod ›
Twój e-mail ›
Wyświetleń oferty:
800