OGŁOSZENIA NIERUCHOMOŚCI
Sprzedaż - Kupno - Wynajem
domy
działki
garaże
magazyny
lokale użytkowe
mieszkania
budynki użytkowe
kamienice
pokoje
gospodarstwa rolne
domki
Rodzaj ogłoszenia:
- wszystkie ogłoszenia -
Sprzedaż
Kupno
Zamiana
Wynajem
Typ nieruchomości:
- wszystkie typy -
dom
działka
garaż
magazyn
lokal użytkowy
mieszkanie
budynek użytkowy
kamienica
pokój
gospodarstwo rolne
domek
Województwo:
- dowolne województwo -
dolnośląskie
kujawsko-pomorskie
lubelskie
lubuskie
łódzkie
małopolskie
mazowieckie
opolskie
podkarpackie
podlaskie
pomorskie
śląskie
świętokrzyskie
warmińsko-mazurskie
wielkopolskie
zachodniopomorskie
Cena (PLN):
od
do
Skorzystaj z poniższej mapy, aby szybko odnaleźć ogłoszenia nieruchomości w wybranym województwie.
provinces
Tanie noclegi i wczasy nad morzem.
Ceny już od 20 zł za osobę !
Zapraszamy nad polskie Morze Bałtyckie.
Mieszkanie na sprzedaż (59 m
2
) - Cieszków.
powrót
Cena ›
160000 zł
Typ nieruchomości ›
mieszkanie
Powierzchnia ›
59 m
2
Województwo ›
dolnośląskie
Miejscowość ›
Cieszków
Ulica i nr ›
Piaskowa
Opis nieruchomości
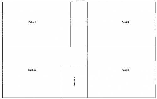
Mieszkanie trzypokojowe o metrarzu 59 m2 położone w malowniczej miejscowości Cieszków koło Milicza (14km) i Krotoszyna (9km). Mieszkanie ulokowane jest na pierwszym piętrze dwupiętrowego bloku wybudowanego w latach 70-tych. Blok jest po renowacji elewacji, ocieplone ściany, nowe drzwi. Mieszkanie składa się z trzech pokoi, kuchni z meblami, łazienki oraz korytarza z wbudowaną szafą wnękową. Na podłodze płytki ceramiczne, gumolit i wykładzina. Mieszkanie schludne, czyste. DO REMONTU! Nikt nie mieszka tam od blisko 10-ciu lat.
Do mieszkania przynależy piwnica ok. 10m2 oraz budynek gospodarczy (garaż) o powierzchni ok. 15m2, dodatkowo nowy nabywca stanie się właścicielem działki rolnej o powierzchni 3 arów.
Miejscowość położona jest niedaleko kompleksu wielkich stawów w Dolinie Baryczy, w otulinie lasów. Mnóstwo zieleni oraz terenów do zwiedzania pieszo jak i rowerem. Dodatkowo przez miejscowość przechodzi droga krajowa 15 co daje znakomite połączenie z innymi miejscowościami oraz miastami (około 30/40 minut do Trzebnicy). W miejscowości znajdują się sklepy (lokalne oraz markety), dwa Ośrodki Zdrowia NFZ, apteki, dwa kościoły, malowniczy park z placem zabaw, szkoła podstawowa i gimnazjum, stadion, restauracje, bank. Miejscowość posiada też węzeł komunikacji MPK z miastem Krotoszyn.
Cena do negocjacji!
Zdjęcia obiektu
Kliknij na miniaturę, aby powiększyć wybrane zdjęcie
.
Opis działki
kanalizacja miejska
szambo
woda
prąd
gaz
Okolica
spokojna okolica
plac zabaw
sklep osiedlowy
park
apteka
las
poczta
szkoła
Informacje dodatkowe
szafa wnękowa
piwnica
centralne ogrzewanie
kuchnia wyposażona
wanna
garaż
kablówka
umeblowanie
Lokalizacja na mapie
Poniżej znajduje się mapa z zaznaczonym miejscem, gdzie znajduje się oferowana nieruchomość.
Ładowanie mapy...
Dane kontaktowe
Poniżej znajdują się dane umożliwiające kontakt z osobą oferującą nieruchomość.
Telefon ›
530493620
Wyślij wiadomość ›
Kod ›
5e8ce1
Przepisz kod ›
Twój e-mail ›
Wyświetleń oferty:
5031