OGŁOSZENIA NIERUCHOMOŚCI
Sprzedaż - Kupno - Wynajem
domy
działki
garaże
magazyny
lokale użytkowe
mieszkania
budynki użytkowe
kamienice
pokoje
gospodarstwa rolne
domki
Rodzaj ogłoszenia:
- wszystkie ogłoszenia -
Sprzedaż
Kupno
Zamiana
Wynajem
Typ nieruchomości:
- wszystkie typy -
dom
działka
garaż
magazyn
lokal użytkowy
mieszkanie
budynek użytkowy
kamienica
pokój
gospodarstwo rolne
domek
Województwo:
- dowolne województwo -
dolnośląskie
kujawsko-pomorskie
lubelskie
lubuskie
łódzkie
małopolskie
mazowieckie
opolskie
podkarpackie
podlaskie
pomorskie
śląskie
świętokrzyskie
warmińsko-mazurskie
wielkopolskie
zachodniopomorskie
Cena (PLN):
od
do
Skorzystaj z poniższej mapy, aby szybko odnaleźć ogłoszenia nieruchomości w wybranym województwie.
provinces
Tanie noclegi i wczasy nad morzem.
Ceny już od 20 zł za osobę !
Zapraszamy nad polskie Morze Bałtyckie.
Mieszkanie na sprzedaż (61 m
2
) - Ełk.
powrót
Cena ›
235000 zł
Typ nieruchomości ›
mieszkanie
Powierzchnia ›
61 m
2
Województwo ›
warmińsko-mazurskie
Miejscowość ›
Ełk
Opis nieruchomości
Atrakcyjne mieszkanie w centrum.
Na sprzedaż mieszkanie w budynku położonym przy ul. Wawelskiej (krótka Wawelska przy biurowcu TP i w pobliżu KRUS). W budynku znajduje się 6 lokali (1 usługowy i 5 mieszkalnych) oraz oddzielne piwnice.
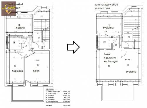
Mieszkanie o powierzchni 61,89m2 położone na 2 piętrze w stanie deweloperskim (możliwość wykończenia pod klucz). Z nową instalacją elektryczną, wodną oraz c.o (licznik). Składa się z ustawnego salonu (~ 21m2) z wyjściem na duży taras (~ 9m2), dużej sypialni (~ 16m2), kuchni (~ 15 m2), łazienki z wc (~ 5m2).
Najważniejsze atuty:
- Licznik na c.o. (ogrzewanie miejskie)
- Elektroniczny sterownik temperatury c.o.
- Wideodomofon
- Duży taras
- Lokalizacja - cicha część centrum miasta.
!!! Zapraszamy do obejrzenia i podania swojej propozycji cenowej !!!
Wynagrodzenie biura pokrywa sprzedający.
Zdjęcia obiektu
Kliknij na miniaturę, aby powiększyć wybrane zdjęcie
.
Opis działki
kanalizacja miejska
woda
prąd
Okolica
spokojna okolica
przychodnia
centrum handlowe
sklep osiedlowy
apteka
autobus
szkoła
Informacje dodatkowe
piwnica
balkon
Lokalizacja na mapie
Poniżej znajduje się mapa z zaznaczonym miejscem, gdzie znajduje się oferowana nieruchomość.
Ładowanie mapy...
Dane kontaktowe
Poniżej znajdują się dane umożliwiające kontakt z osobą oferującą nieruchomość.
Telefon kom. ›
535536308
Wyślij wiadomość ›
Kod ›
45748f
Przepisz kod ›
Twój e-mail ›
Wyświetleń oferty:
3272