OGŁOSZENIA NIERUCHOMOŚCI
Sprzedaż - Kupno - Wynajem
domy
działki
garaże
magazyny
lokale użytkowe
mieszkania
budynki użytkowe
kamienice
pokoje
gospodarstwa rolne
domki
Rodzaj ogłoszenia:
- wszystkie ogłoszenia -
Sprzedaż
Kupno
Zamiana
Wynajem
Typ nieruchomości:
- wszystkie typy -
dom
działka
garaż
magazyn
lokal użytkowy
mieszkanie
budynek użytkowy
kamienica
pokój
gospodarstwo rolne
domek
Województwo:
- dowolne województwo -
dolnośląskie
kujawsko-pomorskie
lubelskie
lubuskie
łódzkie
małopolskie
mazowieckie
opolskie
podkarpackie
podlaskie
pomorskie
śląskie
świętokrzyskie
warmińsko-mazurskie
wielkopolskie
zachodniopomorskie
Cena (PLN):
od
do
Skorzystaj z poniższej mapy, aby szybko odnaleźć ogłoszenia nieruchomości w wybranym województwie.
provinces
Tanie noclegi i wczasy nad morzem.
Ceny już od 20 zł za osobę !
Zapraszamy nad polskie Morze Bałtyckie.
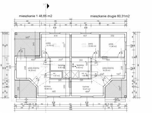
Mieszkanie na sprzedaż (49 m
2
) - Hutki.
powrót
Powierzchnia ›
49 m
2
Województwo ›
śląskie
Miejscowość ›
Hutki
Opis nieruchomości
Wspaniała oferta sprzedaży mieszkania (pół bliźniaka) w stanie developerskim o powierzchni 49 m2 położonego na pięknej 500 metrowej działce. 2 pokoje, duża, otwarta kuchnia, łazienka, WC oraz taras. Najniższa cena na rynku! Promocja przy podpisaniu umowy do końca roku 2010 - tylko 99 990 złotych! Możliwość zakupu domu w stanie "pod klucz" - cena 119 990 zł. Mieszkanie można również zakupić na raty. W ofercie również mieszkania o pow. 61 m2 oraz dom 109 m2 z działką 1000m2. Mieszkania można również wynająć. Znakomita lokalizacja! 15 km od Częstochowy, 45 km od miast górnego Śląska i Zagłębia. Więcej informacji na www.ranczo.eu oraz pod numerem telefonu: 512 114 032
Zdjęcia obiektu
Kliknij na miniaturę, aby powiększyć wybrane zdjęcie
.
Lokalizacja na mapie
Poniżej znajduje się mapa z zaznaczonym miejscem, gdzie znajduje się oferowana nieruchomość.
Ładowanie mapy...
Dane kontaktowe
Poniżej znajdują się dane umożliwiające kontakt z osobą oferującą nieruchomość.
Telefon ›
512114032
Wyślij wiadomość ›
Kod ›
582107
Przepisz kod ›
Twój e-mail ›
Wyświetleń oferty:
4661